Espace propriétaire
fr

Votre recherche

Nouveauté
Saint-Raphaël (83700)

3 pièces - 85 m²

A vendre superbe 3 pièces résidence avec piscine ST RAPHAEL VALESCURE

549 000 €
Ref : 27005
Découvrir le bien

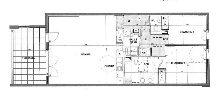
Saint-Raphaël Valescure, niché dans une résidence de standing, en impasse et au calme absolu, ce magnifique appartement 3 pièces de 83 m² offre un cadre de vie paisible, entre élégance et nature.

L’appartement séduit dès l’entrée par ses volumes généreux et sa luminosité. Le vaste espace de vie de 41 m2, composé d’un séjour et d’une cuisine ouverte, s’ouvre sur une belle terrasse exposée plein sud, sans aucun vis-à-vis, bénéficiant d’une vue sur la forêt.

L’espace nuit, parfaitement agencé, comprend une chambre avec rangements intégrés, une suite parentale avec salle de bains, ainsi qu’une seconde salle d’eau.

Belles prestations, climatisation gainable, appartement sans travaux, résidence sécurisée aux parties communes élégantes.

La résidence propose également une jolie piscine. Un garage complète ce bien.

À seulement 5 à 6 minutes en voiture du centre commercial du Golf, cet appartement offre la proximité des commodités tout en offrant un art de vivre paisible et verdoyant.

COUP DE COEUR !!!!!!!

"Bienvenue Chez Vous"

Honoraires charge acquéreur (inclus dans le prix affiché) - Négociateur EI - charges annuelles 3095 € incluant eau froide, chauffage et rafraichissement - nombre de lots : 25
Les informations sur les risques auxquels ce bien est exposé sont disponibles sur le site Géorisques : www. georisques. gouv. fr

TRAD_ZEPHYR_Caracteristique TRAD_ZEPHYR_Valeurs
Code postal 83700
Surface loi Carrez (m²) 83 m²
Nombre de chambre(s) 2
Nombre de pièces 3
Etage 1
Ascenseur OUI
Vue verdure
TRAD_ZEPHYR_Caracteristique TRAD_ZEPHYR_Valeurs
Nb de salle de bains 1
Nb de salle d'eau 1
Cuisine Américaine
Type de cuisine SEMI-EQUIPEE
Mode de chauffage Climatisation
Type de chauffage TRAD_TYPE_CHAUFF_AIR_EAU
Format de chauffage Collectif
Interphone OUI
Visiophone OUI
Balcon NON
Terrasse OUI
Nombre de garage 1
Cave NON
Exposition Nord-Sud
Année de construction 2016
Quartier valescure, Valescure - golf Esterel
TRAD_ZEPHYR_Caracteristique TRAD_ZEPHYR_Valeurs
Copropriété OUI
nombre de lots 25
Quote Part annuelle des charges 3 095 €
TRAD_ZEPHYR_Caracteristique TRAD_ZEPHYR_Valeurs
Prix de vente honoraires TTC inclus 549 000 €
Prix de vente honoraires TTC exclus 524 850 €
Honoraires TTC à la charge acquéreur 4,6 %
Charges 258 €
Taxe foncière annuelle 1 735 €
Etage 1
chambre 9.67 m²

chambre 13.97 m²

DPE GES
Contacter pour ce bien
L'agence
Téléphone 04 94 82 25 25
Adresse
1351 avenue de Valescure 83700 Saint-Raphaël

* Champ obligatoire

Les informations recueillies sur ce formulaire sont enregistrées dans un fichier informatisé par La Boite Immo agissant comme Sous-traitant du traitement pour la gestion de la clientèle/prospects de l'Agence / du Réseau qui reste Responsable du Traitement de vos Données personnelles. La base légale du traitement repose sur l'intérêt légitime de l'Agence / du Réseau. Elles sont conservées jusqu'à demande de suppression et sont destinées à l'Agence / au Réseau. Conformément à la loi « informatique et libertés », vous disposez des droits d’accès, de rectification, d’effacement, d’opposition, de limitation et de portabilité de vos données. Vous pouvez retirer votre consentement à tout moment en contactant directement l’Agence / Le Réseau. Consultez le site https://cnil.fr/fr pour plus d’informations sur vos droits. Si vous estimez, après avoir contacté l'Agence / le Réseau, que vos droits « Informatique et Libertés » ne sont pas respectés, vous pouvez adresser une réclamation à la CNIL. Nous vous informons de l’existence de la liste d'opposition au démarchage téléphonique « Bloctel », sur laquelle vous pouvez vous inscrire ici : https://www.bloctel.gouv.fr Dans le cadre de la protection des Données personnelles, nous vous invitons à ne pas inscrire de Données sensibles dans le champ de saisie libre.
Ce site est protégé par reCAPTCHA, les Politiques de Confidentialité et les Conditions d'Utilisation de Google s'appliquent.

Découvrir nos outils